
Woodland Pop House
A JOYFUL TRANSFORMATION WITH PANORAMIC VIEWS
Accord, NY
Completed 2025
Nestled onto a steeply sloping site in Accord, Woodland Pop House is a vibrant renovation and addition that proves the transformative power of bold, personal design. The home is a testament to the collaboration between our firm’s architectural vision and our clients’ extraordinary eye for color and design.
The story of Woodland Pop House began long before the first sketches were drawn. Our clients purchased the property in 2010, captivated by its secluded location and phenomenal panoramic views of the Catskill Mountains. However, while the site was a dream, the house was a challenge.


A Catalyst for Change
The original structure suffered from a disconnected layout and an awkward split-level entry that was cramped and chaotic. The interior felt dark and confined, seemingly turning its back on the very vistas that had drawn the clients to the Hudson Valley. After a decade of living at odds with the space, they reached a crossroads: sell the property they loved, or reimagine the house entirely. They chose the latter.
Design work began in 2021, with months spent navigating the tension between ambitious dreams and budget realities. The process was rigorous and deeply iterative. Because the site’s topography is extreme and the clients’ professional and personal needs are highly specific, we explored numerous plan variations. Ultimately, those early iterations were defined by compromise: functional, but lacking the full resonance of the clients’ vision.

Recognizing that this extraordinary site deserved an equally extraordinary response, we collectively pressed pause in 2022. This intentional intermission gave the clients a year to reassess and realign their priorities. When we resumed in 2023, the clarity of purpose was immediate. We leveraged lessons from our early work to distill the design into its most potent form, working through multiple massing studies to test how a significant addition could float over the slope without overwhelming the original footprint. Construction broke ground in December 2023 — the result of a process that favored patience over haste. By honoring the time it took to get the details right, the clients were able to fully realize the bold sanctuary they had first imagined.




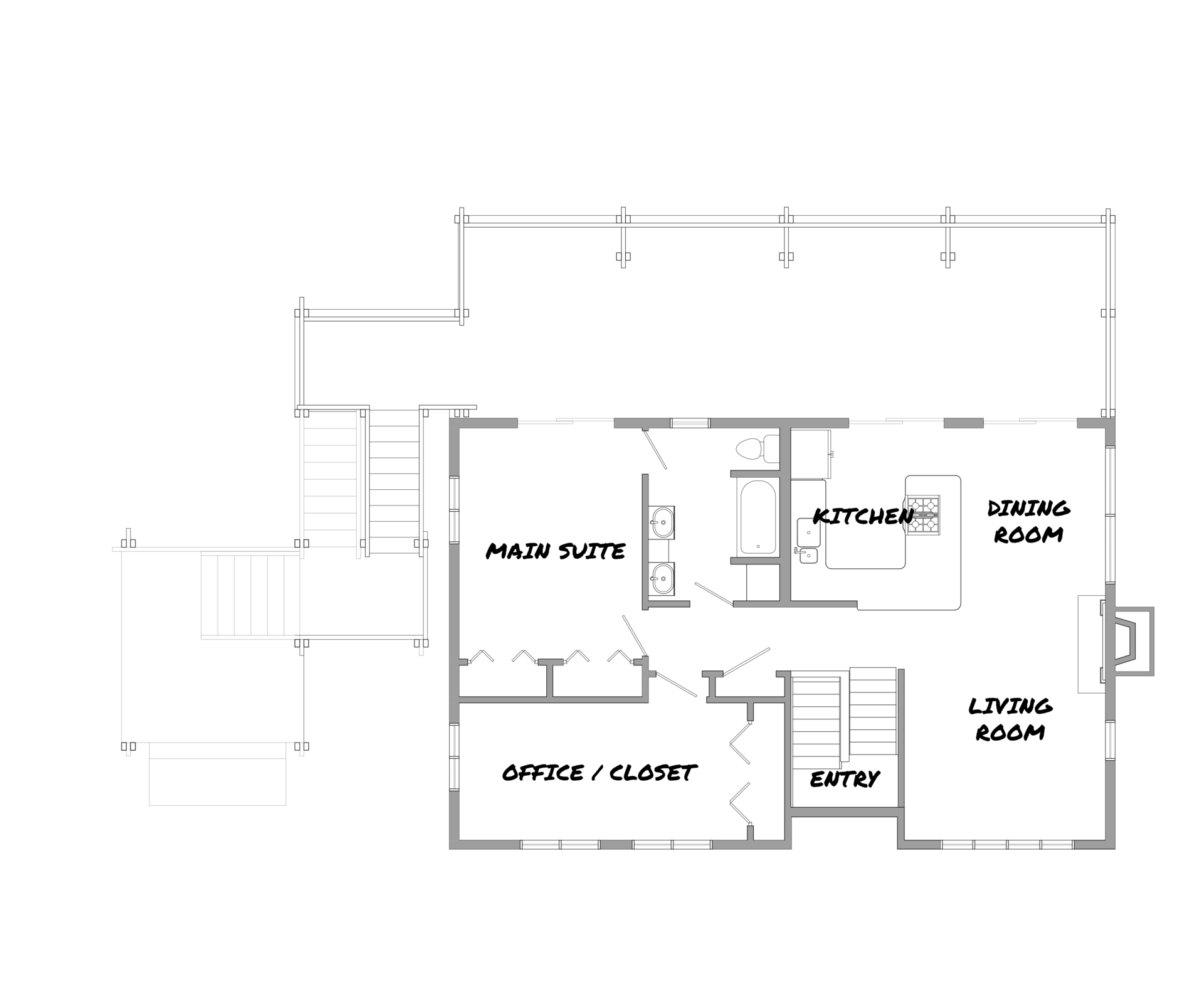
The Architecture: A New Entry Sequence and the Floating Studio
Two major architectural moves define the new space. First, we completely reworked the home’s circulation, relocating the entrance to the rear of the structure to create a more intentional, private sense of arrival. A custom steel sculpture pulls the eye towards the rear of the property. Collaboratively designed by Project Manager Holdt Jones and the clients, the vivid orange sculpture was designed to follow the contours of the landscape and guide visitors towards the entry. Turning the corner, a striking orange canopy is suspended from the underside of the existing deck, providing shelter from rain while immediately announcing the home’s bold personality. The theme continues in the orange and glass front entry door.




The second defining gesture is the music studio addition, which juts boldly over the site’s significant drop-off. Supported by bright orange columns that echo the verticality of the surrounding trees, this “floating” volume was designed to be celebrated as a new creative space rather than a hidden extension.

Inside, the studio is a professional haven tailored to the clients’ collaborative work, seamlessly accommodating a grand piano, keyboards, and the tools of their musical process, as well as showcasing their impressive accolades. Floor-to-ceiling bookcases line two walls, while large panes of glass frame the trees below and the mountains beyond, creating a workspace where the boundary between interior and exterior disappears.



The Heart of the Home
The second floor is dedicated to the primary suite and an open-concept kitchen and dining area. Custom shamrock cabinetry in the kitchen echoes the home’s exterior color, brilliantly disrupted by orange accents including a bright orange range. Expansive porcelain countertops and a gold apron-front sink add sophistication to the playful palette.


The true magic of the kitchen lies in its connectivity. A large bifold door allows the rear wall to disappear entirely, dissolving the boundary between the kitchen and the expansive deck — a critical requirement for clients who wanted guests to drift freely between the interior and the open air without ever feeling disconnected from the chef or the view.


A tiled ochre fireplace links the kitchen to the dining nook, providing warmth to the space where the clients spend most of their time. The dining area windows frame views of the trees while retaining the privacy required for the front facade. Rather than a formal living area upstairs, the kitchen, deck, and dining nook serve as the primary gathering space; the home’s “living room” retreats to a lower-level lounge instead.
A Stage for the Catskills
If the kitchen is the heart, the deck is the soul of Woodland Pop House. Located on the roof of the new music studio, this upper-level deck significantly expanded the home’s existing outdoor space, spanning the full width of the home and reusing portions of the original deck’s structure. Dedicated zones for dining and lounging sit alongside planters and a large hot tub. Wood railings were refinished to match the new house, while welded steel wire infill minimizes interruptions to the view. From this vantage point, one looks across the treetops to the Catskill Mountains — the dramatic elevation of the site experienced in its full glory.

The Role of Color
At Woodland Pop House, color is not simply decoration — it provides structure. From the first moment of arrival, the vivid orange sculpture and canopy do the work that form alone cannot: they signal intention, establish mood, and orient the visitor within the landscape. Throughout the interior of the home, color is used with the same deliberateness as any architectural element, choreographing the emotional experience of moving through the space. Each room carries its own saturated identity: the deep blue of the library invites concentration, the terracotta of the guest suite radiates warmth, the shamrock green of the kitchen grounds the home’s most social space in the landscape beyond. For all its boldness, the palette never feels arbitrary. Orange recurs — in the entry ceiling, the kitchen range, the studio columns— threading a connective warmth into every level of the house and providing the signature “pop” of color.

Rendered in softer pastels, the primary bedroom suite offers a counterpoint to the home’s bolder gestures. Oriented toward the mountains, a large sliding glass door leads out to the deck, allowing the clients to wake up to the vistas that first drew them to the site. Bright yellow bookshelves line the entrance to the bedroom, and the en-suite bathroom continues the “pastel pop” theme, creating a spa-like environment that remains true to the home’s colorful spirit. The main bedroom closet, however, is where the clients’ personalities are most fully revealed: textures, colors, and patterns abound, with shoes, caps, bags, kimonos, and sweaters all finding their place alongside a cabinet dedicated to glasses, ties, and pins. Color-tunable lights help set the scene.



Connecting the two levels is a staircase that functions as a transitional art piece. Boldly rejecting the neutral pass-through hallway, it features yellow-orange walls, deep purple treads, and a hot fuchsia metal railing. This high-energy transition completely transforms the original entry to the home, preparing occupants for the shift from the expansive, airy social spaces above to the creative, grounded lower level.


A Creative Retreat
The stair descends to the home’s entry and mudroom, which is wrapped in magenta cabinetry, patterned wallpaper, and bold tiles. The space is a step down from the original floor level to give the entrance a loftier ceiling height and a distinct feel.
This level serves as a sanctuary for both work and guest hospitality. In addition to the music studio, which branches off the main entry, a series of highly curated spaces offers retreat. A dedicated library, painted a deep saturated blue and lined with custom millwork, features unique ceiling details and elegant sconces — a jewel box of a room where the clients’ extensive collection of books finds a proper home.


The moody media room, dressed in dark illustrative wallpaper and a polka dot carpet, and anchored by a deep blue sectional, is perfect for film screenings and evenings in. Down the hall, a combined laundry and gym space ensures that even the most utilitarian areas of the home are integrated into the overall design flow.




The guest suite is treated with as much care and color as the primary spaces. Rich terracotta-toned walls and a patterned ceiling create a warm, sunset-like glow in the guest bedroom. The adjoining bathroom is a marvel of maximalist design: deep rouge square tiles in the shower contrast with a dark teal tub and vibrant pink floral wallpaper, creating an exceptional guest experience.





The Power of Personal Design
Where the original house was closed-off, clunky, and architecturally confused, the renovated Woodland Pop House is light-filled, rhythmic, and intentional. By shifting the focus toward the Catskill vistas and embracing a high-saturation palette throughout, the team transformed a house that “never quite fit” into a residence that finally embraces its occupants.
Woodland Pop House is a testament to the fact that modern architecture doesn’t have to be cold or white to be sophisticated. It is a celebration of the courage to be personal — proof that a home is at its best when it refuses to blend in.


Studio MM Team
Marica McKeel
Holdt Jones
Interior Design Team
Clients, names witheld
Consultants
General Contractor: HNI Builders
Structural Engineering: TYLin (Silman)
Photography: Brad Feinknopf
Kitchen and Countertops: Cabinet Designers
Library Millwork: Ian Von Miller
Main Bedroom: Old Mine Carpentry Co.
Bedroom Shelving: Rakks Shelving
Exterior Landscape Sculpture: Fall Fittings
Plantings: Victoria’s Gardens
Hardscaping: Shawn McCloskey
The Original Home
The original home had a split level entry at the front of the house that had a large and cumbersome deck, and a tight, cramped interior. On the side and rear of the home, the deck was busy, confusing and too small for the types of gatherings that our clients wanted to host. Our clients had infused their love of color into some of the existing spaces, but they knew the home had much more to offer!



The Design Process
We had already worked with these clients on Modern Accord Depot, so we knew that their love of color would play a large role in the design. We spent time providing multiple iterations and options, and worked through many different models of the addition! Once the final version was developed, we also got to play with exterior colors, experimenting with different roof colors and combinations.



Construction
Large-scale renovation projects are inherently collaborative. Unexpected conditions are part of the process, and a strong working relationship between architect, client, and contractor is essential. Woodland Pop House is a testament to that kind of joyful, productive partnership. Throughout construction, we navigated site conditions together, brainstormed solutions on the fly, and provided the clients with a range of fixture and finish mockups to guide their interior design decisions. We also worked closely with the contractor to coordinate and implement ideas, liaising with millworkers, glass fabricators, window representatives, painters, and lighting vendors. When a home is anything but standard, communication and project management have to be exceptional — and here, they were.














